ÀúÀå ÀÚµ¿·Î±×ÀÎ



 
ÀÛ¼ºÀÏ : 15-11-05 20:37
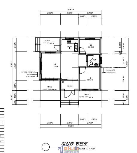
[½Ã°øÇöÀå] ¿ïÁøÇöÀåÀÔ´Ï´Ù
 ±Û¾´ÀÌ : ±ÍÃ̰ÇÃà
Á¶È¸ : 1,668  

¿ïÁøÇöÀåÀº

°¡Á·µéÀÌ ÇÔ²²ÇÏ´Â ÁýÁþ±â ÀÔ´Ï´Ù.

ÇüÁ¦ºÐÀÌ °°Àº ±Ô¸ð, °°Àº ¸ðÇüÀÇ ÁýÀ» ¹Ù·Î ¿·¿¡ Áþ½À´Ï´Ù.

ÇÔ²² »ç¿ëÇÒ Ã¢°íµµ Áþ°Ô µË´Ï´Ù.

 

°ÇÃàÁÖ ÀÓ¼±»ý´ÔÀº ÀÚ¿¬¿¡ ´ëÇÑ °ü½ÉÀÌ ¸¹À¸½Ê´Ï´Ù.

»ê³ª¹°, »ê¾àÃÊ µî

¾Æ¸¶µµ ±×·± ¿¬À¯·Î ¿ïÁø ¼­¸éÀÇ Àü¸ÁÁÁ°í ȯ°æÁÁÀº »ê¼Ó °è°îÀ» ¼±ÅÃÇÏ½Å°Í °°½À´Ï´Ù.

 

¼³°èµµ¸éÀÌ Ãæ½ÇÇÏÁö ¸øÇÑ ¸éÀÌ ÀÖ½À´Ï´Ù ¸¸

°ÇÃàÁÖ¿Í ±ä¹ÐÇÑ ÇùÀǸ¦ ÅëÇØ

°ÇÃàÁÖ°¡ Áþ°íÀÚ ÇÏ´Â ÁýÀ» Áþµµ·Ï ÇϰڽÀ´Ï´Ù.

 

¿ì¼± ÀÛ¾÷Àå°â â°í °Ç¹°À» ¿Ï¼ºÇϰí

µÎ°³ °Ç¹°À» µ¿½Ã¿¡ Âø°øÇϵµ·Ï ÇÒ ¿¹Á¤ÀÔ´Ï´Ù.

ÇѰ³µ¿Àº "±ÍÃ̰ÇÃà"ÀÇ °£ÆÇ½ºÅ¸ "È«±â¿µ ÆÀÀå´Ô"ÀÌ

´Ù¸¥ Çϳª´Â "¸ñÁ¶ Àü¹®½Ã°øÆÀ"ÀÇ ¹ÝÃà°ø»ç·Î ÇÏ·Á°í ÇÕ´Ï´Ù.

 

°ÇÃàÁÖÀÇ À帶ö¿¡ ´ëÇÑ ¿ì·Á°¡ ¸¹½À´Ï´Ù.

°¡´ÉÇÑ Àη°ú Àåºñ¸¦ ÅõÀÔÇÏ¿©

ºü¸¥ ½Ã°øÀÌ µÇ°Ô ÇϰڽÀ´Ï´Ù.

 

´ë°ÔÀÇ Àü¿øÁÖÅÃÀÌ Àü¸ÁÀÌ ÁÁ°í, ȯ°æÀÌ ÄèÀûÇÑ °÷À̶ó¼­

ÁøÀÔµµ·Î°¡ Àß Á¤ºñ µÇÁö ¸øÇØ

ÀÚÀç¼ö¼Û¿¡ Å« ¾Ö·Î»çÇ×ÀÌ ÀÖ½À´Ï´Ù.

 

¿ïÁø ¼­¸éÇöÀåµµ ¸¸¸¸Ä¡°¡ ¾ÊÀ» µí ÇÕ´Ï´Ù.

»çÀü¿¡ ÃæºÐÇÑ °ËÅä¿Í ´ëºñ°¡ ÇÊ¿äÇÑ ºÎºÐÀÔ´Ï´Ù.

¸ðµç°É °ÇÃàÁÖ ÀÓ¼±¼Ä´Ô°ú ÇÔ²² Àß ÇØ³»µµ·Ï ÇϰڽÀ´Ï´Ù.







 
 

¹øÈ£ Á¦   ¸ñ ±Û¾´ÀÌ ³¯Â¥ Á¶È¸
536
[°ÇÀçÁ¤º¸] °ÇÃàÁÖÀÇ ¿°¿ø....|
±ÍÃ̰ÇÃà 11-05 1362
535
[°ñÁ¶°ø»ç] °ñÁ¶ÀÛ¾÷ (1)|
±ÍÃ̰ÇÃà 11-05 1434
534
[±âÃʰø»ç] Åä´ë¸¦ ¼³Ä¡ÇÏ°í ¿ùÀ» ¼¼¿ì´Ù
±ÍÃ̰ÇÃà 11-05 1602
533
[°ÇÀçÁ¤º¸] ±âÃʰÅǪÁý ÇØÃ¼ÀÛ¾÷ ¹× ÀÚÀçÇÏ¿ª
±ÍÃ̰ÇÃà 11-05 2036
532
[ÀϹÝÁ¤º¸] ·¹¹ÌÄÜ Å¸¼³...|
±ÍÃ̰ÇÃà 11-05 1633
531
[±âÃʰø»ç] ±âÃÊÀÛ¾÷ ½ÃÀÛ
±ÍÃ̰ÇÃà 11-05 1360
530
[½Ã°øÇöÀå] ÇöÀå ÁÖº¯À̾߱â
±ÍÃ̰ÇÃà 11-05 1785
529
[±âÃʰø»ç] ±âÃÊ 3Àϰ
±ÍÃ̰ÇÃà 11-05 1736
528
[±âÃʰø»ç] ±âÃÊ 2Àϰ
±ÍÃ̰ÇÃà 11-05 1730
527
[±âÃʰø»ç] ±âÃÊ 1Àϰ
±ÍÃ̰ÇÃà 11-05 1610
526
[¼³°èÁ¤º¸] °ÇÃà ½Ã°ø¹æÇâ|
±ÍÃ̰ÇÃà 11-05 1677
525
[½Ã°øÇöÀå] ±ÍÃ̰ÇÃà 19¹øÂ° ½Ã°øÇöÀå
±ÍÃ̰ÇÃà 11-05 1497
524
[¼³ºñ°ø»ç] ¿ÀÇ °Å½ÇõÁ¤
±ÍÃ̰ÇÃà 11-05 1493
523
[³­¹æ°ø»ç] ±¸µé ½Ã°ø
±ÍÃ̰ÇÃà 11-05 1304
522
[¿ÜÀå°ø»ç] Bµ¿ ¿ÜºÎ º®µ¹ Á¶Àû
±ÍÃ̰ÇÃà 11-05 1446
521
[¿ÜÀå°ø»ç] Aµ¿ ¿ÜºÎ º®µ¹ Á¶Àû
±ÍÃ̰ÇÃà 11-05 1315
520
[°ÇÀçÁ¤º¸] ÇöÀå ÀÚÀç ¹ÝÀÔ...|
±ÍÃ̰ÇÃà 11-05 1426
519
[³»Àå°ø»ç] ³»ºÎ ·ç¹ÙÀÛ¾÷
±ÍÃ̰ÇÃà 11-05 1903
518
[³»Àå°ø»ç] ¼®°íÀÛ¾÷
±ÍÃ̰ÇÃà 11-05 1496
517
[³»Àå°ø»ç] ³»ºÎ º®Ã¼ ¼¼¿ì±â
±ÍÃ̰ÇÃà 11-05 1744
516
[³»Àå°ø»ç] ´Ü¿­Àç ½Ã°ø
±ÍÃ̰ÇÃà 11-05 1456
515
[ÁöºØ°ø»ç] ÁöºØ ½³±ÛÀÕ±â
±ÍÃ̰ÇÃà 11-05 1641
514
[°ñÁ¶°ø»ç] Cµ¿ - â°í (4)|
±ÍÃ̰ÇÃà 11-05 1577
513
[°ñÁ¶°ø»ç] Cµ¿ - â°í (3)
±ÍÃ̰ÇÃà 11-05 1307
512
[½Ã°øÇöÀå] Cµ¿ - â°í (2)
±ÍÃ̰ÇÃà 11-05 1281
511
[½Ã°øÇöÀå] Cµ¿ - â°í (1)
±ÍÃ̰ÇÃà 11-05 1357
510
[°ñÁ¶°ø»ç] Bµ¿ °ñÁ¶ -6
±ÍÃ̰ÇÃà 11-05 1367
509
[°ñÁ¶°ø»ç] Bµ¿ °ñÁ¶ -5
±ÍÃ̰ÇÃà 11-05 1343
508
[°ñÁ¶°ø»ç] Bµ¿ °ñÁ¶ -4
±ÍÃ̰ÇÃà 11-05 1300
507
[°ñÁ¶°ø»ç] Bµ¿ °ñÁ¶ -3|
±ÍÃ̰ÇÃà 11-05 1514
506
[°ñÁ¶°ø»ç] Bµ¿ °ñÁ¶ -2
±ÍÃ̰ÇÃà 11-05 1277
505
[°ñÁ¶°ø»ç] Bµ¿ °ñÁ¶ -1
±ÍÃ̰ÇÃà 11-05 1332
504
[°ñÁ¶°ø»ç] Aµ¿ °ñÁ¶ -5
±ÍÃ̰ÇÃà 11-05 1287
503
[°ñÁ¶°ø»ç] Aµ¿ °ñÁ¶ -4
±ÍÃ̰ÇÃà 11-05 1316
502
[°ñÁ¶°ø»ç] Aµ¿ °ñÁ¶ -3
±ÍÃ̰ÇÃà 11-05 1429
501
[°ñÁ¶°ø»ç] Aµ¿ °ñÁ¶ -2
±ÍÃ̰ÇÃà 11-05 1393
500
[°ñÁ¶°ø»ç] Aµ¿ °ñÁ¶ -1
±ÍÃ̰ÇÃà 11-05 1322
499
[¼³ºñ°ø»ç] ±âÃÊ °ÅǪÁý Á¦°Å ¹× °ñÁ¶¸¦ À§ÇÑ ÁÖº¯Á¤¸®
±ÍÃ̰ÇÃà 11-05 1689
498
[±âÃʰø»ç] ±âÃʸ¦ ¿Ï¼ºÇÏ´Ù.
±ÍÃ̰ÇÃà 11-05 1373
497
[±âÃʰø»ç] ±âÃʰø»ç -5
±ÍÃ̰ÇÃà 11-05 1470
496
[±âÃʰø»ç] ±âÃʰø»ç - 4
±ÍÃ̰ÇÃà 11-05 1789
495
[±âÃʰø»ç] ±âÃʰø»ç - 3
±ÍÃ̰ÇÃà 11-05 1975
494
[±âÃʰø»ç] ±âÃʰø»ç - 2
±ÍÃ̰ÇÃà 11-05 1463
493
[±âÃʰø»ç] ±âÃʰø»ç - 1
±ÍÃ̰ÇÃà 11-05 1287
492
[½Ã°øÇöÀå] ÇØ¹ß 700ÀÇ °ÇÃà ÇöÀå
±ÍÃ̰ÇÃà 11-05 1270
491
[¼³°èÁ¤º¸] °ÇÃà ½Ã°ø¹æÇâÀÔ´Ï´Ù
±ÍÃ̰ÇÃà 11-05 1793
490
[½Ã°øÇöÀå] ¿ïÁøÇöÀåÀÔ´Ï´Ù
±ÍÃ̰ÇÃà 11-05 1669
489
[ÁöºØ°ø»ç] ½ºÆä´Ï½¬ ±â¿Í ½Ã°ø -2
±ÍÃ̰ÇÃà 11-05 3682
488
[ÁöºØ°ø»ç] ½ºÆä´Ï½¬ ±â¿Í ½Ã°ø -1|
±ÍÃ̰ÇÃà 11-05 2066
487
[³»Àå°ø»ç] ȲÅä ¹Ù´Ú¹ÌÀåÀ» À§ÇÑ ÃʹúÀÛ¾÷
±ÍÃ̰ÇÃà 11-05 1838
 1  2  3  4  5  6  7  8  9  
»óÈ£¸í: ´ëÇ¥: ´ã´çÀÚ:
ÁÖ¼Ò: ÀüÈ­¹øÈ£: ÇÚµåÆù: E-mail: Á¤º¸º¸È£´ã´çÀÚ: