ÀúÀå ÀÚµ¿·Î±×ÀÎ



 
ÀÛ¼ºÀÏ : 15-11-05 21:10
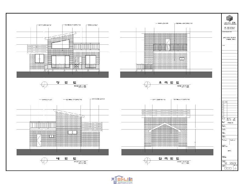
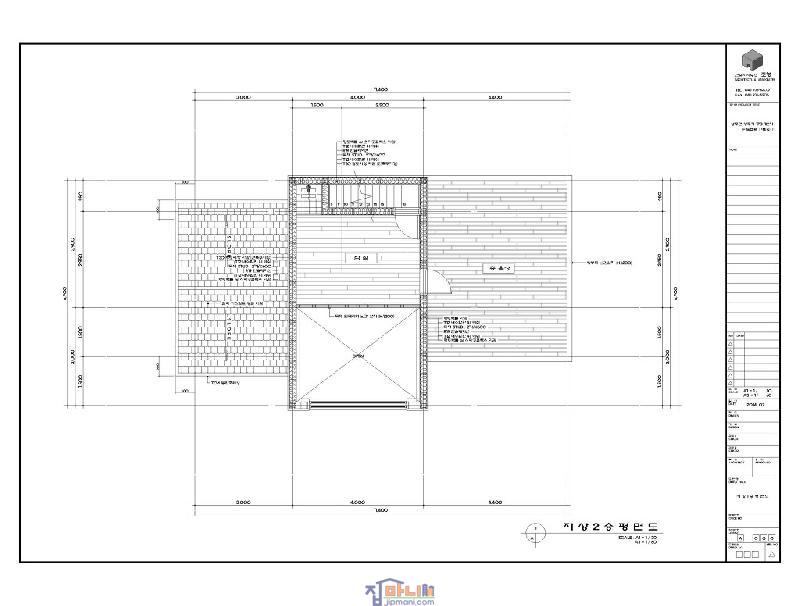
[¼³°èÁ¤º¸] ±âº»¼³°è µµ¸é
 ±Û¾´ÀÌ : ±ÍÃ̰ÇÃà
Á¶È¸ : 4,868  

±âº» ¼³°èµµ¸éÀÔ´Ï´Ù.,

 

°ÇÃ౸»óÀº ÀÌ·¸½À´Ï´Ù.

*±âÃÊ: ö±ÙÄÜÅ©¸®Æ®±âÃÊÀÔ´Ï´Ù.

-¾È¹æ¿¡ ±¸µéÀ» ³õ¾Æ¾ß ÇÔÀ¸·Î ÁÙ±âÃÊ¿Í ¿ÂÅë±âÃʸ¦ º´ÇàÇØ¾ß ÇÒ°Í °°½À´Ï´Ù

*º®Ã¼°ñÁ¶ : 3Áߺ® (¿Üº®+Á᫐ ±¸Á¶Ã¼+³»º®)

-Á߽ɱ¸Á¶Ã¼´Â ¸ñÁ¶Çü½ÄÀ¸·Î 2by4 ¶Ç´Â 2by6·Î ½ºÅ͵带 ¼¼¿ì°í Àν¶·¹ÀÌ¼Ç ´Ü¿­À» ÇÕ´Ï´Ù.

-Àμú·¹À̼ÇÀº 2by4¿¡´Â R11À» 2by6¿¡´Â R19¸¦ »ç¿ëÇÕ´Ï´Ù.

-³»º®Ã¼´Â ȲÅ亮µ¹·Î Á¶ÀûÇÕ´Ï´Ù. 300*150*150 ¶Ç´Â 300*150*120 À» °ËÅäÇϰíÀÖ½À´Ï´Ù,

-¿Üº®Ã¼´Â ½Ã¸àÆ®»çÀ̵ù°ú ½ºÅ¸ÄÚÇ÷º½ºÁß¿¡ ¼±ÅÃÇÏ°Ô µÉ°Í °°½À´Ï´Ù.

*ÁöºØÀº ¾Æ½ºÆÈÆ®½³±Û·Î ÇϰԵ˴ϴÙ.

-ÁöºØ ¼­±î·¡ ±¸Á¶Àç·Î 2b8À» »ç¿ëÇÏ°Ô µÇ´Âµ¥ ¼­±î·¡º¥Æ®¸¦ »ç¿ëÇÏ¿© ÁöºØÈ¯±â°¡ µÇµµ·Ï ÇÕ´Ï´Ù.

-´Ü¿­Àç´Â Àν¶·¹À̼ÇÀ» ½Ã°øÇÏ°Ô µÇ´Âµ¥ °¡Àå µÎ²¨¿î R30À» »ç¿ëÇÕ´Ï´Ù.

*2ÃþÀº ³»º®¿¡ ȲÅ亮µ¹ ½Ã°øº¸´Ù´Â ¼®°íº¸µå½Ã°øÀ» °ËÅäÇϰí ÀÖ½À´Ï´Ù.

-2Ãþ ¾ÕÀ¸·Î Å׶󽺰³³äÀÇ µ¥Å©¸¦ ½Ã°øÇÏ°Ô µÇ´Âµ¥ ÁöºØ´Ü¿­°ú ¹æ¼ö¹®Á¦¸¦ ÇØ°áÇØ¾ß ÇÕ´Ï´Ù.

-¹æ¼ö¹®Á¦´Â ¹æ¼ö½ÃÆ®¿Í °ñÇÔ¼® ½Ã°øÀ» °ËÅäÇϰí ÀÖ½À´Ï´Ù.

*°ÇÃàºñ¿ëÀº °ÇÃàÁÖ²²¼­ ¼³ÀüÇØÁֽŠ±Ý¾× Çѵµ³»¿¡¼­ ¸¶¹«¸® µÇµµ·Ï ÇÕ´Ï´Ù.

-»çÀü °ßÀûÀ» »ó¼¼ÇÏ°Ô »êÃâÇÏ¿© Ãʰú ºñ¿ëÀÌ ¹ß»ýµÇÁö ¾Êµµ·Ï ÇÕ´Ï´Ù.

-°ÇÃà±â°£Àº ¼ø°ø»çÀÏ 40ÀÏÀ̳»¿¡ ¸¶¹«¸® µÇµµ·Ï Àη¼ö±ÞÀ» Á¶ÀýÇÕ´Ï´Ù.







 
 

¹øÈ£ Á¦   ¸ñ ±Û¾´ÀÌ ³¯Â¥ Á¶È¸
336
[±âÃʰø»ç] ±âÃÊÀÛ¾÷
±ÍÃ̰ÇÃà 11-05 1675
335
[½Ã°øÇöÀå] °í¼Û¸® ÇöÀåÀº,,,,,
±ÍÃ̰ÇÃà 11-05 1552
334
[½Ã°øÇöÀå] °ø»ç ¸¶¹«¸®
±ÍÃ̰ÇÃà 11-05 1311
333
[³­¹æ°ø»ç] ¸¶°¨°ø»ç (8)|
±ÍÃ̰ÇÃà 11-05 1257
332
[³»Àå°ø»ç] ¸¶°¨°ø»ç (7)|
±ÍÃ̰ÇÃà 11-05 1374
331
[³»Àå°ø»ç] ¸¶°¨°ø»ç (6)
±ÍÃ̰ÇÃà 11-05 1604
330
[³»Àå°ø»ç] ¸¶°¨°ø»ç (5)|
±ÍÃ̰ÇÃà 11-05 1203
329
[½Ã°øÁ¤º¸] ¸¶°¨°ø»ç (4)
±ÍÃ̰ÇÃà 11-05 1175
328
[½Ã°øÁ¤º¸] ¸¶°¨°ø»ç (3)
±ÍÃ̰ÇÃà 11-05 1497
327
[½Ã°øÁ¤º¸] ¸¶°¨°ø»ç (2)-¼ø°ø»çÀÏ 30Àϰ
±ÍÃ̰ÇÃà 11-05 1326
326
[½Ã°øÁ¤º¸] ¸¶°¨°ø»ç (1)|
±ÍÃ̰ÇÃà 11-05 1510
325
[¿ÜÀå°ø»ç] ¿ÜºÎ°ø»ç (6)|
±ÍÃ̰ÇÃà 11-05 1480
324
[¿ÜÀå°ø»ç] ¿ÜºÎ°ø»ç (5)|
±ÍÃ̰ÇÃà 11-05 1316
323
[¿ÜÀå°ø»ç] ¿ÜºÎ°ø»ç (4)
±ÍÃ̰ÇÃà 11-05 1543
322
[¿ÜÀå°ø»ç] ¿ÜºÎ°ø»ç (3) º¸·ÉÇöÀå-26Àϰ
±ÍÃ̰ÇÃà 11-05 1325
321
[¿ÜÀå°ø»ç] ¿ÜºÎ°ø»ç (2)|
±ÍÃ̰ÇÃà 11-05 1355
320
[¿ÜÀå°ø»ç] ¿ÜºÎ°ø»ç (1)
±ÍÃ̰ÇÃà 11-05 1455
319
[½Ã°øÁ¤º¸] ±¸µé°ø»ç (2)|
±ÍÃ̰ÇÃà 11-05 1295
318
[½Ã°øÁ¤º¸] ±¸µé °ø»ç (1)|
±ÍÃ̰ÇÃà 11-05 1690
317
[½Ã°øÁ¤º¸] ÁöºØ ½ºÆä´Ï½¬ ±â¿Í ¸¶¹«¸®
±ÍÃ̰ÇÃà 11-05 1832
316
[½Ã°øÁ¤º¸] ¼ø°ø»çÀÏ 20Àϰ
±ÍÃ̰ÇÃà 11-05 1275
315
[½Ã°øÁ¤º¸] ¸¶¹«¸® °ø»ç (2)|
±ÍÃ̰ÇÃà 11-05 1173
314
[½Ã°øÁ¤º¸] ¸¶¹«¸® °ø»ç (1)
±ÍÃ̰ÇÃà 11-05 1301
313
[½Ã°øÁ¤º¸] ³»ºÎ ȲÅ亮µ¹ Á¶Àû ¸¶¹«¸®
±ÍÃ̰ÇÃà 11-05 1289
312
[½Ã°øÁ¤º¸] ³»ºÎ ȲÅ亮µ¹ Á¶Àû (3ÀÏ)
±ÍÃ̰ÇÃà 11-05 1300
311
[½Ã°øÁ¤º¸] ³»ºÎ ȲÅ亮µ¹ Á¶Àû(2ÀÏ)|
±ÍÃ̰ÇÃà 11-05 1653
310
[½Ã°øÁ¤º¸] Á¶Àû 1Àϰ
±ÍÃ̰ÇÃà 11-05 1830
309
[½Ã°øÇöÀå] ¼ø°ø»ç 13Àϰ
±ÍÃ̰ÇÃà 11-05 893
308
[½Ã°øÇöÀå] ¹æ¼ö ½ÃÆ®¸¦ ±ò´Ù.|
±ÍÃ̰ÇÃà 11-05 935
307
[°ñÁ¶°ø»ç] °ñÁ¶ÀÛ¾÷ (¸¶¹«¸®)
±ÍÃ̰ÇÃà 11-05 921
306
[°ñÁ¶°ø»ç] °ñÁ¶ÀÛ¾÷ (6ÀÏ)|
±ÍÃ̰ÇÃà 11-05 952
305
[°ñÁ¶°ø»ç] °ñÁ¶ÀÛ¾÷ (5ÀÏ)
±ÍÃ̰ÇÃà 11-05 979
304
[°ñÁ¶°ø»ç] °ñÁ¶ÀÛ¾÷ (4ÀÏ)|
±ÍÃ̰ÇÃà 11-05 1040
303
[°ñÁ¶°ø»ç] °ñÁ¶ÀÛ¾÷ (3ÀÏ)-2Ãþ Àå¼±ÀÛ¾÷
±ÍÃ̰ÇÃà 11-05 961
302
[°ñÁ¶°ø»ç] °ñÁ¶ÀÛ¾÷ (2ÀÏ) º®Ã¼°ñÁ¶ ºí·ÏÅ·, ÇÕÆÇÀÛ¾÷
±ÍÃ̰ÇÃà 11-05 1318
301
[°ñÁ¶°ø»ç] °ñÁ¶ÀÛ¾÷ (1ÀÏÂ÷)|
±ÍÃ̰ÇÃà 11-05 862
300
[½Ã°øÇöÀå] °ÇÃà ÀÚÀç¹ÝÀÔ
±ÍÃ̰ÇÃà 11-05 1103
299
[±âÃʰø»ç] ±âÃʰø»ç
±ÍÃ̰ÇÃà 11-05 1315
298
[¼³°èÁ¤º¸] °ÇÃà ½ÇÇà°ßÀû
±ÍÃ̰ÇÃà 11-05 2284
297
[¼³°èÁ¤º¸] °Ç¹° ¿ÜÇü
±ÍÃ̰ÇÃà 11-05 1531
296
[¼³°èÁ¤º¸] »ó¼¼°ßÀûÀ» À§ÇÑ Áغñ
±ÍÃ̰ÇÃà 11-05 2242
295
[¼³°èÁ¤º¸] ±âº»¼³°è µµ¸é
±ÍÃ̰ÇÃà 11-05 4869
294
[½Ã°øÇöÀå] °ÇÃàÁÖÀÇ Á¤¼ºÀ» ´À³¢´Ù.....|
±ÍÃ̰ÇÃà 11-05 876
293
[½Ã°øÇöÀå] ¿©ÀüÈ÷ ÁøÇàÁßÀΠõ¾È ±¤´öÇöÀå
±ÍÃ̰ÇÃà 11-05 910
292
[³»Àå°ø»ç] ¹æ¹Ù´Ú ¹ÌÀå
±ÍÃ̰ÇÃà 11-05 1654
291
[³»Àå°ø»ç] ³»ºÎ ¹ÌÀå|
±ÍÃ̰ÇÃà 11-05 1291
290
[½Ã°øÇöÀå] °Ü¿ï°ø»ç À̾߱â|
±ÍÃ̰ÇÃà 11-05 1024
289
[½Ã°øÇöÀå] ÇöÀç°øÁ¤°ú ÇâÈÄÀÏÁ¤
±ÍÃ̰ÇÃà 11-05 828
288
[½Ã°øÇöÀå] ¼ø°ø»ç 30Àϰ (¸¶°¨°ø»ç 8)
±ÍÃ̰ÇÃà 11-05 921
287
[½Ã°øÁ¤º¸] ¸¶°¡°ø»ç (7)|
±ÍÃ̰ÇÃà 11-05 1115
 1  2  3  4  5  6  7  8  9  
»óÈ£¸í: ´ëÇ¥: ´ã´çÀÚ:
ÁÖ¼Ò: ÀüÈ­¹øÈ£: ÇÚµåÆù: E-mail: Á¤º¸º¸È£´ã´çÀÚ: