ÀúÀå ÀÚµ¿·Î±×ÀÎ



 
ÀÛ¼ºÀÏ : 15-11-05 19:24
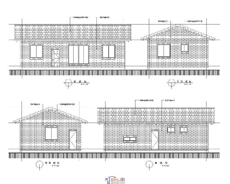
[¼³°èÁ¤º¸] °î¼ºÀÇ °ÇÃ౸»ó
 ±Û¾´ÀÌ : ±ÍÃ̰ÇÃà
Á¶È¸ : 1,630  

°î¼º ÇöÀåÀÇ Æ¯Â¡Àº

¿ì¸® ÀüÅëÇÑ¿Á ¹æ½ÄÀÇ ¼­±î·¡¸¦ »ç¿ëÇÏ´Â °ÍÀÔ´Ï´Ù.

¸»±¸ 120¹Ì¸® ¿øÇü ¼­±î·¡¸¦ ¿ÜºÎ·Î µ¹Ãâ½Ã۰í

³»ºÎ¿¡¼­µµ °³ÆÇÀÌ º¸À̵µ·Ï ½Ã°øÇÏ´Â Á¢Àε¥

ÁöºØ´Ü¿­ÀÌ °ü°ÇÀÔ´Ï´Ù ¸¸

ÀÌ ¶ÇÇÑ ¸ñÁ¶ÁÖÅÃÇü½ÄÀ» ¿ø¿ëÇÏ¿© ÇØ°áÇϱâ·Î Çß½À´Ï´Ù.

 

´çÃÊ¿¡´Â ´Ü¾ÆÇÑ 1ÃþÇüÅ¿´´Âµ¥

2Ãþ ´Ù¶ôÀ» µÎ´Â ÇüÅ·ΠÁøÇàÇÏ·Á°í ÇÕ´Ï´Ù.

 

°î¼ºÀÇ °ÇÃàÁÖ Á¤¼±»ý´Ô²²¼­µµ

°ÇÃà¿¡ ´ëÇÑ Áö½ÄÀÌ ¸¹À¸½Ê´Ï´Ù.

Áþ°íÀÚ ÇϽô ÇüÅÂÀÇ ÁýÀÌ Áö¾î Áöµµ·Ï

ÆÀ¿øµé°ú ÇÔ²² ÃÖ¼±ÀÇ ³ë·ÂÀ» ´Ù ÇϰڽÀ´Ï´Ù.

 

°î¼ºÇöÀåÀº ±ÍÃ̰ÇÃàÀÌ ÁöÇâÇÏ°í ½ÍÀº Çü½ÄÀÇ ±¸Á¶ÀÔ´Ï´Ù.

Á»´õ »ó¼¼ÇÑ Æ÷½ºÆÃÀÌ µÇµµ·Ï ÇØ º¸°Ú½À´Ï´Ù.













 
 

¹øÈ£ Á¦   ¸ñ ±Û¾´ÀÌ ³¯Â¥ Á¶È¸
586
[¼³°èÁ¤º¸] ±âÃÊ-01
±ÍÃ̰ÇÃà 11-05 1351
585
[¼³°èÁ¤º¸] °ÇÃà °³¿ä
±ÍÃ̰ÇÃà 11-05 2106
584
[½Ã°øÇöÀå] ÇöÀåÀ» Àß ´Ù³à¿Ô½À´Ï´Ù.
±ÍÃ̰ÇÃà 11-05 1634
583
[³»Àå°ø»ç] ¸ÞÁö½Ã°ø°ú ³»ºÎ¹ÌÀå
±ÍÃ̰ÇÃà 11-05 1570
582
[½Ã°øÇöÀå] ¸¶¹«¸®¿¡ ¹Ù»Þ´Ï´Ù
±ÍÃ̰ÇÃà 11-05 1324
581
[ÁöºØ°ø»ç] ±â¿Í ½Ã°ø¿¡ ¿Ïº®À» ±âÇÏ´Ù.
±ÍÃ̰ÇÃà 11-05 1862
580
[ÁöºØ°ø»ç] ÁöºØ ±â¿Í½Ã°ø°ú ¿ÜºÎÁ¶Àû ½ÃÀÛ
±ÍÃ̰ÇÃà 11-05 2088
579
[¼³°èÁ¤º¸] °ÇÃà¹æÇâ°ú Á¶°¨µµ
±ÍÃ̰ÇÃà 11-05 3210
578
[¼³°èÁ¤º¸] ¼³°èµµ¸é
±ÍÃ̰ÇÃà 11-05 3654
577
[½Ã°øÇöÀå] °ÇÃà»ç "½Ã´ª
±ÍÃ̰ÇÃà 11-05 1313
576
[ÀϹÝÁ¤º¸] ±ÍÃ̰ÇÃàÀÇ »õ·Î¿î ½Ãµµ...
±ÍÃ̰ÇÃà 11-05 1440
575
[¼³ºñ°ø»ç] °î¼ºÇöÀå ¸¶¹«¸®.....|
±ÍÃ̰ÇÃà 11-05 1541
574
[¼³ºñ°ø»ç] ¾ß¿Ü µ¥Å©ÀÛ¾÷
±ÍÃ̰ÇÃà 11-05 1436
573
[³»Àå°ø»ç] ³»ºÎ ¸¶¹«¸®
±ÍÃ̰ÇÃà 11-05 1388
572
[¼³ºñ°ø»ç] ¸¶°¨°ø»ç -6
±ÍÃ̰ÇÃà 11-05 1498
571
[¼³ºñ°ø»ç] ¸¶°¨°ø»ç -5
±ÍÃ̰ÇÃà 11-05 1317
570
[¼³ºñ°ø»ç] ¸¶°¨°ø»ç -4
±ÍÃ̰ÇÃà 11-05 1288
569
[¼³ºñ°ø»ç] ¸¶°¨°ø»ç -3
±ÍÃ̰ÇÃà 11-05 1185
568
[¼³ºñ°ø»ç] ¸¶°¨°ø»ç -2
±ÍÃ̰ÇÃà 11-05 1263
567
[¼³ºñ°ø»ç] ¸¶°¨°ø»ç -1
±ÍÃ̰ÇÃà 11-05 1315
566
[±ÍÃ̰ÇÃฮºä] ÁÙ´«(¸ÞÁö)ÀÛ¾÷ ÇϽô ¿©Àγ׵é
±ÍÃ̰ÇÃà 11-05 1401
565
[ÁöºØ°ø»ç] ±â¿Í½Ã°ø
±ÍÃ̰ÇÃà 11-05 1422
564
[¼³ºñ°ø»ç] ³»ºÎ, ¿ÜºÎ Á¶ÀûÀÛ¾÷
±ÍÃ̰ÇÃà 11-05 1535
563
[³­¹æ°ø»ç] ±¸µé½Ã°ø
±ÍÃ̰ÇÃà 11-05 1338
562
[ÁöºØ°ø»ç] ±ÍÃ̰ÇÃàÀÇ ÃÊÀ¯ÀÇ ¿øÇü ¼­±î·¡ °É±â
±ÍÃ̰ÇÃà 11-05 1418
561
[°ñÁ¶°ø»ç] °ñÁ¶ÀÛ¾÷ÀÇ ¸·¹ÙÁö....|
±ÍÃ̰ÇÃà 11-05 1358
560
[½Ã°øÇöÀå] °î¼ºÇöÀåÀÇ ¸ÁÁßÇÑ
±ÍÃ̰ÇÃà 11-05 1241
559
[°ñÁ¶°ø»ç] °ñÁ¶ÀÛ¾÷(5)|
±ÍÃ̰ÇÃà 11-05 1470
558
[°ñÁ¶°ø»ç] °ñÁ¶ÀÛ¾÷(4)
±ÍÃ̰ÇÃà 11-05 1420
557
[°ñÁ¶°ø»ç] °ñÁ¶ÀÛ¾÷(3)|
±ÍÃ̰ÇÃà 11-05 1477
556
[°ñÁ¶°ø»ç] °ñÁ¶ÀÛ¾÷(2)-¿ÜºÎÀÛ¾÷´ë ½Ã°ø|
±ÍÃ̰ÇÃà 11-05 1697
555
[°ñÁ¶°ø»ç] °ñÁ¶ÀÛ¾÷(1)|
±ÍÃ̰ÇÃà 11-05 1649
554
[±âÃʰø»ç] ±âÃÊ °ÅǪÁý ÇìüÀÛ¾÷
±ÍÃ̰ÇÃà 11-05 1999
553
[¼³ºñ°ø»ç] ´Ù¶ôÀÇ Æò±Õ°í »êÃâ
±ÍÃ̰ÇÃà 11-05 1528
552
[±âÃʰø»ç] ±âÃÊ ¸¶¹«¸®
±ÍÃ̰ÇÃà 11-05 1380
551
[±âÃʰø»ç] ±âÃÊ 3Àϰ|
±ÍÃ̰ÇÃà 11-05 1397
550
[±âÃʰø»ç] ±âÃʽÃÀÛ
±ÍÃ̰ÇÃà 11-05 1290
549
[¼³°èÁ¤º¸] °î¼ºÀÇ °ÇÃ౸»ó
±ÍÃ̰ÇÃà 11-05 1631
548
[±ÍÃ̰ÇÃฮºä] Àü³² °î¼º
±ÍÃ̰ÇÃà 11-05 1362
547
[¼³ºñ°ø»ç] ¸¶¹«¸®ÀÛ¾÷ -5
±ÍÃ̰ÇÃà 11-05 1315
546
[¼³ºñ°ø»ç] ¸¶¹«¸®ÀÛ¾÷ -4
±ÍÃ̰ÇÃà 11-05 1216
545
[¼³ºñ°ø»ç] ¸¶¹«¸®ÀÛ¾÷ -3
±ÍÃ̰ÇÃà 11-05 1161
544
[¼³ºñ°ø»ç] ¸¶¹«¸®ÀÛ¾÷ - 2
±ÍÃ̰ÇÃà 11-05 1157
543
[¼³ºñ°ø»ç] ¸¶¹«¸® ÀÛ¾÷ -1
±ÍÃ̰ÇÃà 11-05 1260
542
[º®Ã¼°ø»ç] ȲÅ亮µµ Á¶ÀûÀÛ¾÷
±ÍÃ̰ÇÃà 11-05 1319
541
[ÁöºØ°ø»ç] ÁöºØÀÛ¾÷ -2
±ÍÃ̰ÇÃà 11-05 1171
540
[ÁöºØ°ø»ç] ÁöºØÀÛ¾÷ -1
±ÍÃ̰ÇÃà 11-05 1354
539
[°ñÁ¶°ø»ç] °ñÁ¶ÀÛ¾÷ (4)
±ÍÃ̰ÇÃà 11-05 1316
538
[°ñÁ¶°ø»ç] °ñÁ¶ÀÛ¾÷ (3)|
±ÍÃ̰ÇÃà 11-05 1477
537
[°ñÁ¶°ø»ç] °ñÁ¶ÀÛ¾÷ (2)|
±ÍÃ̰ÇÃà 11-05 1287
 1  2  3  4  5  6  7  8  9  
1 Áý¸¶´Ï ¼Ò°³ | °³ÀÎÁ¤º¸ Ãë±Þ¹æÄ§ | ¸Å¹°µî·Ï¾È³» | ¸Å¹°µî·Ï½Åû | ã½À´Ï´Ù | °øÁö»çÇ×