ÀúÀå ÀÚµ¿·Î±×ÀÎ



 
ÀÛ¼ºÀÏ : 15-11-05 21:49
[¼³°èÁ¤º¸] °ÇÃà ¼³°èµµ¸é
 ±Û¾´ÀÌ : ±ÍÃ̰ÇÃà
Á¶È¸ : 6,926  

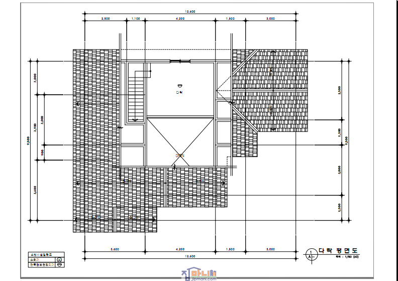
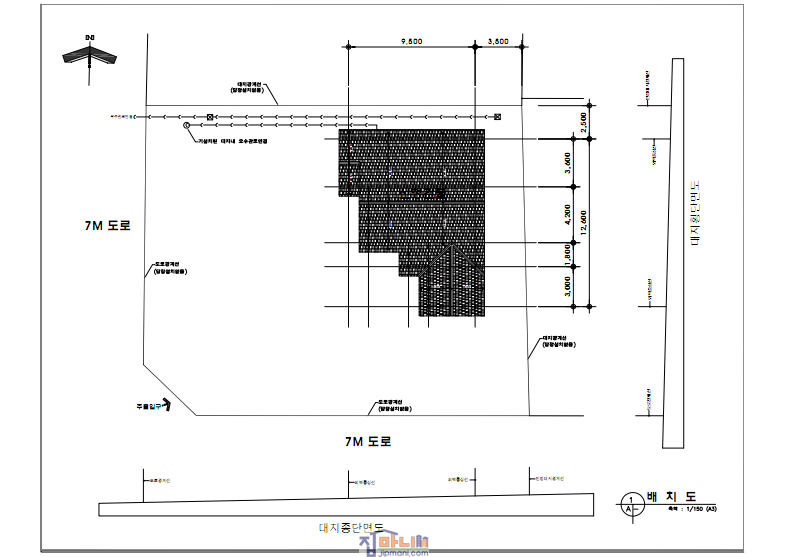
°ÇÃàÁÖ²²¼­ Áֽм³°èµµ¸éÀÔ´Ï´Ù.


ÁýÅÍ ¹æÇâÀ» ÃæºÐÈ÷ °í·ÁÇϼ̰í

ƯÈ÷, ž翭À» ÃæºÐÈ÷ ¹Þµµ·ÏÇÑ °¢½Ç¹èÄ¡°¡ µ¸º¸ÀÔ´Ï´Ù.


´Ù¶ô°è´Ü°ú ÇϺΠ¼ö³³°ø°£

ȲÅ亮µ¹Á¶ÀÇ ¿ÜÇü

±âÃÊÀÇ ³ôÀÌ

½ºÆä´Ï½¬ ±â¿Í »ö»ó µî ¸î°¡Áö ÃæºÐÇÑ »çÀü °ËÅä°¡ ÇÊ¿äÇÕ´Ï´Ù.







 
 

¹øÈ£ Á¦   ¸ñ ±Û¾´ÀÌ ³¯Â¥ Á¶È¸
486
[±âÃʰø»ç] 1Â÷ ¹Ù´Ú½Ã°øÀ» À§ÇÑ Áغñ
±ÍÃ̰ÇÃà 11-05 1504
485
[³»Àå°ø»ç] ³»ºÎ ¸¶°¨ÀÛ¾÷
±ÍÃ̰ÇÃà 11-05 1421
484
[°ñÁ¶°ø»ç] °ñÁ¶ÀÛ¾÷ (4)|
±ÍÃ̰ÇÃà 11-05 1083
483
[°ñÁ¶°ø»ç] °ñÁ¶ÀÛ¾÷ (3)
±ÍÃ̰ÇÃà 11-05 1256
482
[°ñÁ¶°ø»ç] °ñÁ¶ÀÛ¾÷ (2)|
±ÍÃ̰ÇÃà 11-05 1065
481
[°ñÁ¶°ø»ç] °ñÁ¶ÀÛ¾÷ (1)
±ÍÃ̰ÇÃà 11-05 1134
480
[°ÇÀçÁ¤º¸] ÀÚÀç¹ÝÀÔ°ú ¸ÔÁٵαâ
±ÍÃ̰ÇÃà 11-05 1378
479
[½Ã°øÇöÀå] Á¶Àû-01
±ÍÃ̰ÇÃà 11-05 1678
478
[°ÇÀçÁ¤º¸] Á¶Àû ÀÚÀç ¹ÝÀÔ
±ÍÃ̰ÇÃà 11-05 1849
477
[°ñÁ¶°ø»ç] °ñÁ¶-10
±ÍÃ̰ÇÃà 11-05 1178
476
[°ñÁ¶°ø»ç] °ñÁ¶-09
±ÍÃ̰ÇÃà 11-05 1034
475
[°ñÁ¶°ø»ç] °ñÁ¶-08
±ÍÃ̰ÇÃà 11-05 1007
474
[°ñÁ¶°ø»ç] °ñÁ¶-07
±ÍÃ̰ÇÃà 11-05 972
473
[°ñÁ¶°ø»ç] °ñÁ¶-06
±ÍÃ̰ÇÃà 11-05 1005
472
[°ñÁ¶°ø»ç] °ñÁ¶-05
±ÍÃ̰ÇÃà 11-05 997
471
[°ñÁ¶°ø»ç] °ñÁ¶-04
±ÍÃ̰ÇÃà 11-05 1170
470
[°ñÁ¶°ø»ç] °ñÁ¶-03
±ÍÃ̰ÇÃà 11-05 998
469
[±âÃʰø»ç] °ñÁ¶-02
±ÍÃ̰ÇÃà 11-05 1318
468
[°ñÁ¶°ø»ç] °ñÁ¶-01
±ÍÃ̰ÇÃà 11-05 967
467
[±âÃʰø»ç] ±âÃÊ-05
±ÍÃ̰ÇÃà 11-05 1402
466
[±âÃʰø»ç] ±âÃÊ-04
±ÍÃ̰ÇÃà 11-05 1352
465
[±âÃʰø»ç] ±âÃÊ-03
±ÍÃ̰ÇÃà 11-05 1313
464
[±âÃʰø»ç] ±âÃÊ-02
±ÍÃ̰ÇÃà 11-05 1320
463
[±âÃʰø»ç] ±âÃÊ-01|
±ÍÃ̰ÇÃà 11-05 1556
462
[¼³°èÁ¤º¸] Á¶°¨ µµ¸é
±ÍÃ̰ÇÃà 11-05 1391
461
[¼³°èÁ¤º¸] °ÇÃà ¼³°èµµ¸é
±ÍÃ̰ÇÃà 11-05 6927
460
[½Ã°øÇöÀå] ÇöÀ广¹®
±ÍÃ̰ÇÃà 11-05 1403
459
[ÁöºØ°ø»ç] ½ºÆä´Ï½¬ ±â¿Í½Ã°ø (4)|
±ÍÃ̰ÇÃà 11-05 1597
458
[ÁöºØ°ø»ç] ½ºÆä´Ï½¬ ±â¿Í½Ã°ø (3)|
±ÍÃ̰ÇÃà 11-05 1453
457
[ÁöºØ°ø»ç] ½ºÆä´Ï½¬ ±â¿Í½Ã°ø (2)|
±ÍÃ̰ÇÃà 11-05 1720
456
[ÁöºØ°ø»ç] ½ºÆä´Ï½¬ ±â¿Í½Ã°ø (1)|
±ÍÃ̰ÇÃà 11-05 1994
455
[Ãß°¡°ø»ç] Ãß°¡ °ø»ç (1)
±ÍÃ̰ÇÃà 11-05 1146
454
[½Ã°øÇöÀå] 8¿ù 31ÀÏ¿¡ ¸¶¹«¸®...|
±ÍÃ̰ÇÃà 11-05 1402
453
[³­¹æ°ø»ç] º¸ÀÏ·¯½Ç, ŸÀϽðø, ¿ÜºÎ¸ôµù ¹× ¾ß¿Ü Å×±×°ø»ç
±ÍÃ̰ÇÃà 11-05 2505
452
[Ãß°¡°ø»ç] Á¤È­Á¶, ȲÅä¹ÌÀå, ÁÖÂ÷Àå Æ÷Àå
±ÍÃ̰ÇÃà 11-05 1352
451
[³»Àå°ø»ç] ¹Ù´Ú ¹æÅë
±ÍÃ̰ÇÃà 11-05 1499
450
[¼³ºñ°ø»ç] ó¸¶ ¼ÒÇÍ, ¹®¼±¸ôµù
±ÍÃ̰ÇÃà 11-05 1806
449
[³»Àå°ø»ç] ³»ºÎ ¸ôµù, ¹Ù´Ï½¬ µµÀå
±ÍÃ̰ÇÃà 11-05 1963
448
[³­¹æ°ø»ç] ³­¹æ ¹è°ü
±ÍÃ̰ÇÃà 11-05 1396
447
[¿ÜÀå°ø»ç] ¿ÜºÎ µµ»ö
±ÍÃ̰ÇÃà 11-05 1414
446
[³»Àå°ø»ç] ³»ºÎ ȲÅ亮µ¹ Á¶Àû
±ÍÃ̰ÇÃà 11-05 1493
445
[¼³ºñ°ø»ç] °Å½Ç ¿ÀÇ õÁ¤
±ÍÃ̰ÇÃà 11-05 1550
444
[¿ÜÀå°ø»ç] ¿ÜºÎ ¸¶°¨ ½ÃÀÛ
±ÍÃ̰ÇÃà 11-05 1446
443
[³»Àå°ø»ç] ³»ºÎ ÇÕÆÇ, °Å½Ç ·ç¹Ù ½Ã°ø|
±ÍÃ̰ÇÃà 11-05 1627
442
[¼³ºñ°ø»ç] ´Ü¿­Àç, ³»ºÎ ½Ã°ø
±ÍÃ̰ÇÃà 11-05 1552
441
[Àü±â°ø»ç] Àü±â, ¼³ºñ ½Ã°ø
±ÍÃ̰ÇÃà 11-05 1678
440
[ÁöºØ°ø»ç] ÁöºØ ½³±ÛÀÛ¾÷
±ÍÃ̰ÇÃà 11-05 1507
439
[¿ÜÀå°ø»ç] µå·¹Àη¦ ½Ã°ø
±ÍÃ̰ÇÃà 11-05 1658
438
[½Ã°øÇöÀå] ÆäÀÌ»þ ....|
±ÍÃ̰ÇÃà 11-05 1515
437
[°ñÁ¶°ø»ç] °ñÁ¶¿Ï·á
±ÍÃ̰ÇÃà 11-05 937
 1  2  3  4  5  6  7  8  9  
1 Áý¸¶´Ï ¼Ò°³ | °³ÀÎÁ¤º¸ Ãë±Þ¹æÄ§ | ¸Å¹°µî·Ï¾È³» | ¸Å¹°µî·Ï½Åû | ã½À´Ï´Ù | °øÁö»çÇ×