ÀúÀå ÀÚµ¿·Î±×ÀÎ



 
ÀÛ¼ºÀÏ : 15-11-05 21:10
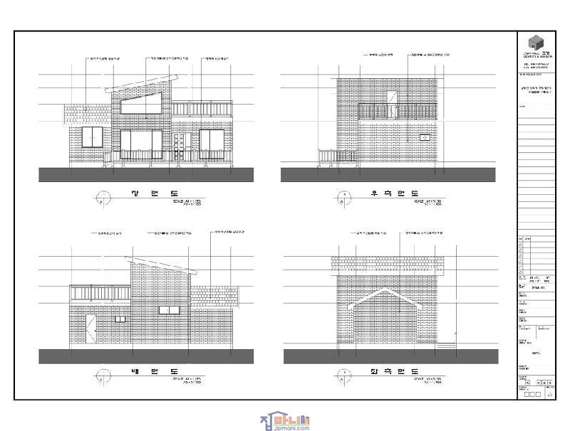
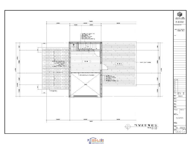
[¼³°èÁ¤º¸] ±âº»¼³°è µµ¸é
 ±Û¾´ÀÌ : ±ÍÃ̰ÇÃà
Á¶È¸ : 4,866  

±âº» ¼³°èµµ¸éÀÔ´Ï´Ù.,

 

°ÇÃ౸»óÀº ÀÌ·¸½À´Ï´Ù.

*±âÃÊ: ö±ÙÄÜÅ©¸®Æ®±âÃÊÀÔ´Ï´Ù.

-¾È¹æ¿¡ ±¸µéÀ» ³õ¾Æ¾ß ÇÔÀ¸·Î ÁÙ±âÃÊ¿Í ¿ÂÅë±âÃʸ¦ º´ÇàÇØ¾ß ÇÒ°Í °°½À´Ï´Ù

*º®Ã¼°ñÁ¶ : 3Áߺ® (¿Üº®+Á᫐ ±¸Á¶Ã¼+³»º®)

-Á߽ɱ¸Á¶Ã¼´Â ¸ñÁ¶Çü½ÄÀ¸·Î 2by4 ¶Ç´Â 2by6·Î ½ºÅ͵带 ¼¼¿ì°í Àν¶·¹ÀÌ¼Ç ´Ü¿­À» ÇÕ´Ï´Ù.

-Àμú·¹À̼ÇÀº 2by4¿¡´Â R11À» 2by6¿¡´Â R19¸¦ »ç¿ëÇÕ´Ï´Ù.

-³»º®Ã¼´Â ȲÅ亮µ¹·Î Á¶ÀûÇÕ´Ï´Ù. 300*150*150 ¶Ç´Â 300*150*120 À» °ËÅäÇϰíÀÖ½À´Ï´Ù,

-¿Üº®Ã¼´Â ½Ã¸àÆ®»çÀ̵ù°ú ½ºÅ¸ÄÚÇ÷º½ºÁß¿¡ ¼±ÅÃÇÏ°Ô µÉ°Í °°½À´Ï´Ù.

*ÁöºØÀº ¾Æ½ºÆÈÆ®½³±Û·Î ÇϰԵ˴ϴÙ.

-ÁöºØ ¼­±î·¡ ±¸Á¶Àç·Î 2b8À» »ç¿ëÇÏ°Ô µÇ´Âµ¥ ¼­±î·¡º¥Æ®¸¦ »ç¿ëÇÏ¿© ÁöºØÈ¯±â°¡ µÇµµ·Ï ÇÕ´Ï´Ù.

-´Ü¿­Àç´Â Àν¶·¹À̼ÇÀ» ½Ã°øÇÏ°Ô µÇ´Âµ¥ °¡Àå µÎ²¨¿î R30À» »ç¿ëÇÕ´Ï´Ù.

*2ÃþÀº ³»º®¿¡ ȲÅ亮µ¹ ½Ã°øº¸´Ù´Â ¼®°íº¸µå½Ã°øÀ» °ËÅäÇϰí ÀÖ½À´Ï´Ù.

-2Ãþ ¾ÕÀ¸·Î Å׶󽺰³³äÀÇ µ¥Å©¸¦ ½Ã°øÇÏ°Ô µÇ´Âµ¥ ÁöºØ´Ü¿­°ú ¹æ¼ö¹®Á¦¸¦ ÇØ°áÇØ¾ß ÇÕ´Ï´Ù.

-¹æ¼ö¹®Á¦´Â ¹æ¼ö½ÃÆ®¿Í °ñÇÔ¼® ½Ã°øÀ» °ËÅäÇϰí ÀÖ½À´Ï´Ù.

*°ÇÃàºñ¿ëÀº °ÇÃàÁÖ²²¼­ ¼³ÀüÇØÁֽŠ±Ý¾× Çѵµ³»¿¡¼­ ¸¶¹«¸® µÇµµ·Ï ÇÕ´Ï´Ù.

-»çÀü °ßÀûÀ» »ó¼¼ÇÏ°Ô »êÃâÇÏ¿© Ãʰú ºñ¿ëÀÌ ¹ß»ýµÇÁö ¾Êµµ·Ï ÇÕ´Ï´Ù.

-°ÇÃà±â°£Àº ¼ø°ø»çÀÏ 40ÀÏÀ̳»¿¡ ¸¶¹«¸® µÇµµ·Ï Àη¼ö±ÞÀ» Á¶ÀýÇÕ´Ï´Ù.







 
 

¹øÈ£ Á¦   ¸ñ ±Û¾´ÀÌ ³¯Â¥ Á¶È¸
336
[±âÃʰø»ç] ±âÃÊÀÛ¾÷
±ÍÃ̰ÇÃà 11-05 1674
335
[½Ã°øÇöÀå] °í¼Û¸® ÇöÀåÀº,,,,,
±ÍÃ̰ÇÃà 11-05 1551
334
[½Ã°øÇöÀå] °ø»ç ¸¶¹«¸®
±ÍÃ̰ÇÃà 11-05 1310
333
[³­¹æ°ø»ç] ¸¶°¨°ø»ç (8)|
±ÍÃ̰ÇÃà 11-05 1256
332
[³»Àå°ø»ç] ¸¶°¨°ø»ç (7)|
±ÍÃ̰ÇÃà 11-05 1373
331
[³»Àå°ø»ç] ¸¶°¨°ø»ç (6)
±ÍÃ̰ÇÃà 11-05 1603
330
[³»Àå°ø»ç] ¸¶°¨°ø»ç (5)|
±ÍÃ̰ÇÃà 11-05 1201
329
[½Ã°øÁ¤º¸] ¸¶°¨°ø»ç (4)
±ÍÃ̰ÇÃà 11-05 1174
328
[½Ã°øÁ¤º¸] ¸¶°¨°ø»ç (3)
±ÍÃ̰ÇÃà 11-05 1496
327
[½Ã°øÁ¤º¸] ¸¶°¨°ø»ç (2)-¼ø°ø»çÀÏ 30Àϰ
±ÍÃ̰ÇÃà 11-05 1324
326
[½Ã°øÁ¤º¸] ¸¶°¨°ø»ç (1)|
±ÍÃ̰ÇÃà 11-05 1509
325
[¿ÜÀå°ø»ç] ¿ÜºÎ°ø»ç (6)|
±ÍÃ̰ÇÃà 11-05 1479
324
[¿ÜÀå°ø»ç] ¿ÜºÎ°ø»ç (5)|
±ÍÃ̰ÇÃà 11-05 1315
323
[¿ÜÀå°ø»ç] ¿ÜºÎ°ø»ç (4)
±ÍÃ̰ÇÃà 11-05 1542
322
[¿ÜÀå°ø»ç] ¿ÜºÎ°ø»ç (3) º¸·ÉÇöÀå-26Àϰ
±ÍÃ̰ÇÃà 11-05 1324
321
[¿ÜÀå°ø»ç] ¿ÜºÎ°ø»ç (2)|
±ÍÃ̰ÇÃà 11-05 1354
320
[¿ÜÀå°ø»ç] ¿ÜºÎ°ø»ç (1)
±ÍÃ̰ÇÃà 11-05 1454
319
[½Ã°øÁ¤º¸] ±¸µé°ø»ç (2)|
±ÍÃ̰ÇÃà 11-05 1293
318
[½Ã°øÁ¤º¸] ±¸µé °ø»ç (1)|
±ÍÃ̰ÇÃà 11-05 1689
317
[½Ã°øÁ¤º¸] ÁöºØ ½ºÆä´Ï½¬ ±â¿Í ¸¶¹«¸®
±ÍÃ̰ÇÃà 11-05 1831
316
[½Ã°øÁ¤º¸] ¼ø°ø»çÀÏ 20Àϰ
±ÍÃ̰ÇÃà 11-05 1274
315
[½Ã°øÁ¤º¸] ¸¶¹«¸® °ø»ç (2)|
±ÍÃ̰ÇÃà 11-05 1172
314
[½Ã°øÁ¤º¸] ¸¶¹«¸® °ø»ç (1)
±ÍÃ̰ÇÃà 11-05 1299
313
[½Ã°øÁ¤º¸] ³»ºÎ ȲÅ亮µ¹ Á¶Àû ¸¶¹«¸®
±ÍÃ̰ÇÃà 11-05 1287
312
[½Ã°øÁ¤º¸] ³»ºÎ ȲÅ亮µ¹ Á¶Àû (3ÀÏ)
±ÍÃ̰ÇÃà 11-05 1299
311
[½Ã°øÁ¤º¸] ³»ºÎ ȲÅ亮µ¹ Á¶Àû(2ÀÏ)|
±ÍÃ̰ÇÃà 11-05 1652
310
[½Ã°øÁ¤º¸] Á¶Àû 1Àϰ
±ÍÃ̰ÇÃà 11-05 1829
309
[½Ã°øÇöÀå] ¼ø°ø»ç 13Àϰ
±ÍÃ̰ÇÃà 11-05 892
308
[½Ã°øÇöÀå] ¹æ¼ö ½ÃÆ®¸¦ ±ò´Ù.|
±ÍÃ̰ÇÃà 11-05 934
307
[°ñÁ¶°ø»ç] °ñÁ¶ÀÛ¾÷ (¸¶¹«¸®)
±ÍÃ̰ÇÃà 11-05 919
306
[°ñÁ¶°ø»ç] °ñÁ¶ÀÛ¾÷ (6ÀÏ)|
±ÍÃ̰ÇÃà 11-05 950
305
[°ñÁ¶°ø»ç] °ñÁ¶ÀÛ¾÷ (5ÀÏ)
±ÍÃ̰ÇÃà 11-05 978
304
[°ñÁ¶°ø»ç] °ñÁ¶ÀÛ¾÷ (4ÀÏ)|
±ÍÃ̰ÇÃà 11-05 1038
303
[°ñÁ¶°ø»ç] °ñÁ¶ÀÛ¾÷ (3ÀÏ)-2Ãþ Àå¼±ÀÛ¾÷
±ÍÃ̰ÇÃà 11-05 960
302
[°ñÁ¶°ø»ç] °ñÁ¶ÀÛ¾÷ (2ÀÏ) º®Ã¼°ñÁ¶ ºí·ÏÅ·, ÇÕÆÇÀÛ¾÷
±ÍÃ̰ÇÃà 11-05 1316
301
[°ñÁ¶°ø»ç] °ñÁ¶ÀÛ¾÷ (1ÀÏÂ÷)|
±ÍÃ̰ÇÃà 11-05 861
300
[½Ã°øÇöÀå] °ÇÃà ÀÚÀç¹ÝÀÔ
±ÍÃ̰ÇÃà 11-05 1102
299
[±âÃʰø»ç] ±âÃʰø»ç
±ÍÃ̰ÇÃà 11-05 1313
298
[¼³°èÁ¤º¸] °ÇÃà ½ÇÇà°ßÀû
±ÍÃ̰ÇÃà 11-05 2282
297
[¼³°èÁ¤º¸] °Ç¹° ¿ÜÇü
±ÍÃ̰ÇÃà 11-05 1530
296
[¼³°èÁ¤º¸] »ó¼¼°ßÀûÀ» À§ÇÑ Áغñ
±ÍÃ̰ÇÃà 11-05 2239
295
[¼³°èÁ¤º¸] ±âº»¼³°è µµ¸é
±ÍÃ̰ÇÃà 11-05 4867
294
[½Ã°øÇöÀå] °ÇÃàÁÖÀÇ Á¤¼ºÀ» ´À³¢´Ù.....|
±ÍÃ̰ÇÃà 11-05 875
293
[½Ã°øÇöÀå] ¿©ÀüÈ÷ ÁøÇàÁßÀΠõ¾È ±¤´öÇöÀå
±ÍÃ̰ÇÃà 11-05 908
292
[³»Àå°ø»ç] ¹æ¹Ù´Ú ¹ÌÀå
±ÍÃ̰ÇÃà 11-05 1653
291
[³»Àå°ø»ç] ³»ºÎ ¹ÌÀå|
±ÍÃ̰ÇÃà 11-05 1290
290
[½Ã°øÇöÀå] °Ü¿ï°ø»ç À̾߱â|
±ÍÃ̰ÇÃà 11-05 1023
289
[½Ã°øÇöÀå] ÇöÀç°øÁ¤°ú ÇâÈÄÀÏÁ¤
±ÍÃ̰ÇÃà 11-05 827
288
[½Ã°øÇöÀå] ¼ø°ø»ç 30Àϰ (¸¶°¨°ø»ç 8)
±ÍÃ̰ÇÃà 11-05 920
287
[½Ã°øÁ¤º¸] ¸¶°¡°ø»ç (7)|
±ÍÃ̰ÇÃà 11-05 1114
 1  2  3  4  5  6  7  8  9  
1 Áý¸¶´Ï ¼Ò°³ | °³ÀÎÁ¤º¸ Ãë±Þ¹æÄ§ | ¸Å¹°µî·Ï¾È³» | ¸Å¹°µî·Ï½Åû | ã½À´Ï´Ù | °øÁö»çÇ×