ÀúÀå ÀÚµ¿·Î±×ÀÎ



 
ÀÛ¼ºÀÏ : 15-11-05 19:52
[¼³°èÁ¤º¸] °ÇÃàÁÖ²²¼­ ÀÇ·ÚÇϽм³°èµµ¸é °ú °ÇÃàÁÖ °ÇÃà¹æÇâ
 ±Û¾´ÀÌ : ±ÍÃ̰ÇÃà
Á¶È¸ : 3,134  

ÀÚ¿¬Ä£È­ÀûÀÎ À¦ºù°ÇÃà¿¡ °ü½ÉÀÌ ¸¹À¸½Å

°ÇÃàÁÖ¸¦ ¸¸³ª°Ô µÇ¾ú½À´Ï´Ù.

ƯÈ÷, °ÇÃàÁÖ »ç¸ð´Ô²²¼­

±×µ¿¾È ³»ÁýÁþ´Â Á¤º¸¿Í ÀÚ·á, ÇöÀå°ßÇеî

¸¹Àº Áö½Ä°ú »ó½ÄÀ» °¡Áö°í °è¼Ì½À´Ï´Ù.

 

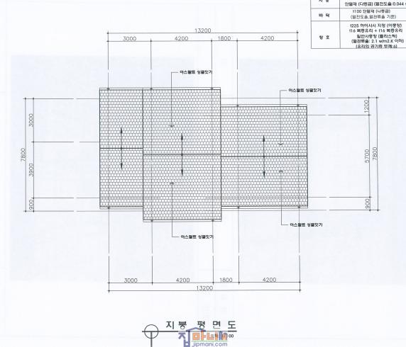
ÁýÀÇ ÀüüÀûÀÎ ¿ÜÇüÀº ȲÅ亮µ¹Á¶ ¾Æ½ºÆÈÆ® ½³±ÛÁöºØÀÔ´Ï´Ù.

´Ü¿­Àº 3Áß º®Ã¼·Î º®µÎ²²°¡ 400ÀÔ´Ï´Ù.

¿Üº® 100TȲÅ亮µ¹Á¶

Á߽ɺ® 150T ±¸Á¶Á¦ ¿ù

³»º® 150T ȲÅ亮µ¹Á¶

 

Áֿ丶°¨Àº

¿Üº® ȲÅ亮µ¹ ¸ÞÁö¸¶°¨

³»º® ȲÅ亮µ¹ ¹ÌÀ帶°¨ ÈÄ È²ÅäÆÛƼ ½Ã°ø

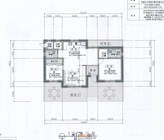
³»ºÎ õÁ¤ÀÇ °æ¿ì

·ëÀº 12.5T ģȯ°æ¼®°í 2P ½Ã°ø ÈÄ µµ¸Å¸¶°¨

°Å½Ç, ÁÖ¹æ, ´Ù¿ëµµ ģȯ°æ¼­°í 1P ½Ã°øÈÄ ·ç¹Ù ¸¶°¨ ÈÄ ¹Ù´Ï½¬ ó¸®

È­Àå½Ç ¸®ºù¿ìµå ¸¶°¨

 

´Ü¿­Àç´Â º®Ã¼ÀÇ °æ¿ì Àν¶·¹ÀÌ¼Ç R19

ÁöºØÀº R30

 

ÁÖ¿ä ±¸Á¶Àç·Î´Â

¿ù ½ºÅ͵å 2by6

õÁ¤Àå¼± 2by8

ÁöºØ ¶óÇÁŸ 2by10

 

¿ÜºÎÄ¡À帶°¨À¸·Î´Â

ÇÁ¶óÀÌ´× ¶óÇÁŸÀÇ °æ¿ì 2by8

ÆäÀÌ»þÀÇ °æ¿ì ÁöÁö¸ñÀº 2by8À¸·Î ¿ÜºÎ ¸¶°¨Àº ½Ã¸àÆ®»çÀ̵ù(210)À¸·Î

󸶴 ¹é»ö PVC ¼ÒÇÍ ¸¶°¨

 

ƯÈ÷, °ø±â¼øÈ¯À» À§ÇÑ º¥Æ®½Ã°ø öÀú

4°³¼ÒÀÇ ¹Ú°øº¥Æ®´Â ¹Ú°øÀÇ Å©±â¸¦ °í·Á 18ÀÎÄ¡ 2°³¼Ò, 22ÀÎÄ¡ 2°³¼Ò ½Ã°ø

ÁöºØ ¿ë¸¶·çº¥Æ®ÀÇ °æ¿ì °¡´ÉÇÑ ÃÖ´ë ±æÀÌ·Î ½Ã°ø

¶óÇÁŸº¥Æ®ÀÇ °æ¿ì ¹Ð½ÇÇÏ°Ô ½Ã°ø

󸶺¥Æ®¿Í ¶óÇÁŸº¥Æ®ÀÇ Åë·ÎÈ®º¸

È­Àå½Ç, ÁÖ¹æ Èĵ庥Ʈ

 

±âÃÊ¿Í ±¸Á¶Ã¼ ½Ã°øµî¿¡ A±Þ ¸ñ¼ö½Ã°ø

Á¶Àû°ú ¹ÌÀå µî È뺮µ¹ Àü¹®ÆÀ ½Ã°ø

âȣ½Ã°øÀÚ¿Í »çÀüÇùÀÇ Ã¶Àú·Î ±ú²ýÇÑ ¸¶°¨½Ã°ø

Àü±â¿Í ¼³ºñÀÇ Àü¹®ÆÀ ¿ÜÁÖ·Î ÇÏÀÚ¾ø´Â ½Ã°ø

°ÇÃàÁÖ¿Í ÇÔ²²Çϴ öÀúÇÑ ¼º½Ç½Ã°øÀÌ µÇµµ·Ï ÇϰڽÀ´Ï´Ù.

 

<°ÇÃàÁÖ °è¼­ Á¦°øÇØÁֽм³°èµµ¸é ÀÔ´Ï´Ù>

 

 

 

 










 
 

¹øÈ£ Á¦   ¸ñ ±Û¾´ÀÌ ³¯Â¥ Á¶È¸
286
[½Ã°øÇöÀå] ¸¶°¨°ø»ç (6)|
±ÍÃ̰ÇÃà 11-05 892
285
[½Ã°øÇöÀå] ¸¶°¨°ø»ç (5)
±ÍÃ̰ÇÃà 11-05 875
284
[½Ã°øÇöÀå] ¸¶°¨°ø»ç (4) - ÁöºØ½³±ÛÀÛ¾÷
±ÍÃ̰ÇÃà 11-05 925
283
[½Ã°øÇöÀå] ¸¶°¨°ø»ç (3) - ÁöºØÆ² ±³Á¤
±ÍÃ̰ÇÃà 11-05 1000
282
[½Ã°øÇöÀå] ¸¶°¨°ø»ç (2)|
±ÍÃ̰ÇÃà 11-05 960
281
[½Ã°øÁ¤º¸] ¸¶°¨°ø»ç (1)|
±ÍÃ̰ÇÃà 11-05 1314
280
[½Ã°øÁ¤º¸] Á¶Àû°ø»ç (5) ¸¶¹«¸®
±ÍÃ̰ÇÃà 11-05 1599
279
[½Ã°øÇöÀå] Á¶Àû°ø»ç (4)
±ÍÃ̰ÇÃà 11-05 968
278
[½Ã°øÇöÀå] Á¶Àû°ø»ç (3)|
±ÍÃ̰ÇÃà 11-05 1372
277
[½Ã°øÇöÀå] Á¶Àû°ø»ç (2)
±ÍÃ̰ÇÃà 11-05 1070
276
[½Ã°øÇöÀå] Á¶Àû°ø»ç ½ÃÀÛ (1)|
±ÍÃ̰ÇÃà 11-05 906
275
[½Ã°øÇöÀå] ºñ°¡ ¿À´Â ÇöÀå
±ÍÃ̰ÇÃà 11-05 886
274
[°ñÁ¶°ø»ç] °ñÁ¶°ø»ç (6)|
±ÍÃ̰ÇÃà 11-05 864
273
[°ñÁ¶°ø»ç] °ñÁ¶°ø»ç (5)|
±ÍÃ̰ÇÃà 11-05 985
272
[°ñÁ¶°ø»ç] °ñÁ¶°ø»ç (4)
±ÍÃ̰ÇÃà 11-05 877
271
[°ñÁ¶°ø»ç] °ñÁ¶°ø»ç (3)|
±ÍÃ̰ÇÃà 11-05 963
270
[°ñÁ¶°ø»ç] °ñÁ¶°ø»ç (2)|
±ÍÃ̰ÇÃà 11-05 1010
269
[°ñÁ¶°ø»ç] °ñÁ¶°ø»ç (1) - ¼ø°ø»çÀÏ 5Àϰ
±ÍÃ̰ÇÃà 11-05 909
268
[±âÃʰø»ç] ±âÃʰø»ç (4) - ·¹¹ÌÄÜ Å¸¼³
±ÍÃ̰ÇÃà 11-05 1342
267
[±âÃʰø»ç] ±âÃʰø»ç (3)
±ÍÃ̰ÇÃà 11-05 1488
266
[±âÃʰø»ç] ±âÃʰø»ç (2Àϰ)|
±ÍÃ̰ÇÃà 11-05 1354
265
[±âÃʰø»ç] ±âÃʰø»ç ½ÃÀÛ
±ÍÃ̰ÇÃà 11-05 1391
264
[½Ã°øÇöÀå] ÇöÀå´ä»ç¿Í °¡º­¿î »ó´ã
±ÍÃ̰ÇÃà 11-05 843
263
[½Ã°øÁ¤º¸] ½Ã°øÀ» À§ÇÑ Áغñ»çÇ×
±ÍÃ̰ÇÃà 11-05 1221
262
[¼³°èÁ¤º¸] °ÇÃàÁÖ²²¼­ ÀÇ·ÚÇϽм³°èµµ¸é °ú °ÇÃàÁÖ °ÇÃà¹æÇâ
±ÍÃ̰ÇÃà 11-05 3135
 1  2  3  4  5  6  7  8  9
1 Áý¸¶´Ï ¼Ò°³ | °³ÀÎÁ¤º¸ Ãë±Þ¹æÄ§ | ¸Å¹°µî·Ï¾È³» | ¸Å¹°µî·Ï½Åû | ã½À´Ï´Ù | °øÁö»çÇ×